欢迎来到湖南弘跃舒适环境系统工程有限公司!
服务热线

13637414687

您的位置: 网站首页  >> 新闻资讯  >> 新闻动态  >> 查看详情

【湖南弘跃】长沙中央空调工程设计常见问题及整改措施。

时间:2018-07-23     作者:http://ihomeyes.com/

长沙中央空调末端设计不当引起噪音超标

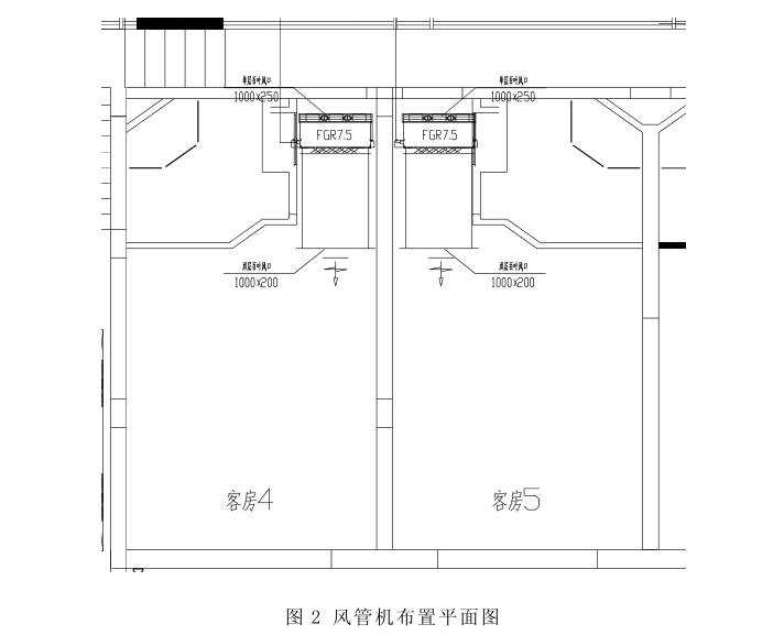
现象一

某酒店客房采用FGR7.5/A1(风量 1250m3 /h,机外静压 40Pa)风管机直接接风口侧送风,风管机布置,机组运行后噪音超标,测试噪音高达 52dB(A),引起客户的不满。

长沙中央空调图

 

原因:
(1)机组选型错误,FGR7.5/A1 风管机带有 40Pa 的机外静压,如果直接接风口侧送风,则机组因静压偏大,导致机组噪音偏高,安装时又未对机组做特殊减噪处理;

(2)为了降低设备初投资与安装成本,而没有按照标准的安装方式进行安装。

现场整改措施:

在条件许可的情况下,机组尽量靠近门侧安装,风管机接送风管送风,以消耗部分静压,噪音明显下降。

长沙中央空调图

 

现象二

 某展厅采用卧式暗装风机盘管单侧侧送风,15 台 FP-204WA 紧密布置,如图 3 所示,机组运行后噪音超标,同样引起客户的不满。

原因:
(1)为了降低设备初投资、与安装成本,以及简化系统,而选择大型号风机盘管;
(2)设计者忽略了标准型风机盘管带有 12Pa 机外静压,直接接风口送风,同样会因机组静压偏大,导致机组噪音偏高,而且风盘布置太密集,造成噪音叠加,使噪音值偏大更多;
(3)设计者没有考虑建筑噪音的要求,直接按室内冷负荷简单选型。

长沙中央空调图

现场整改措施:
(1)考虑合理的气流组织,可将 15 台风盘分散布置在展厅两侧,采取对吹的方式送风;
(2)如果条件允许,可采用集中送风,将机组置于空调机房,如果噪音还是无法满足,则可对机房和机组本身采取降噪措施;
(3)如果没有中央空调机房,可根据冷量需求,将风机盘管改为 2 台吊柜进行集中送风,同时在送风管和回风管上增加消声装置,以及对机组本身取降噪措施。

长沙中央空调图


预设整改措施:
(1)根据建筑噪音的要求,尽量选择噪音低的小型号室内机,如果单台无法满足,则宜选择多台,以降低噪音值;
(2)对于高静压风管机、带静压的风机盘管,不允许直接侧送风,而宜接风管送风,由于标准型风机盘管均带有 12Pa 的机外静压,部分风管机也是非 0 静压的,接一段风管可消耗一部分静压,可有效的减小噪音,如果对噪音要求更高的场所,则还需在送风管和回风管处加消声装置,
(3)对于办公、住宅、宾馆客房等对噪音有一定要求的场所,机组的回风宜采用后回风形式,接风管或静压箱回风,同时安装消声装置,而不宜采用下回风;

(4)尽量避免两台室内机紧密布置,造成噪音的叠加;
(5)若条件限制不得不选择噪音过大的室内机,设计时应考虑降噪措施;
(6)对于面积较大、层高较高的场所,尽量采用集中送风,并对机组本身增加消声减振措施,以及在送风管和回风管上增加消声装置。

长沙中央空调图

弘跃暖通定制方案

CUSTOMIZED PROGRAMS

*建筑户型:    *建筑面积:   
*您的姓名:    *联系电话:   

方案需求:

Copyright © 2006-2018 湖南弘跃舒适环境系统工程有限公司 版权所有 All rights reserved. 湘ICP备17002662号-1 技术支持:智优营家